Sporthalle Bad Waldsee
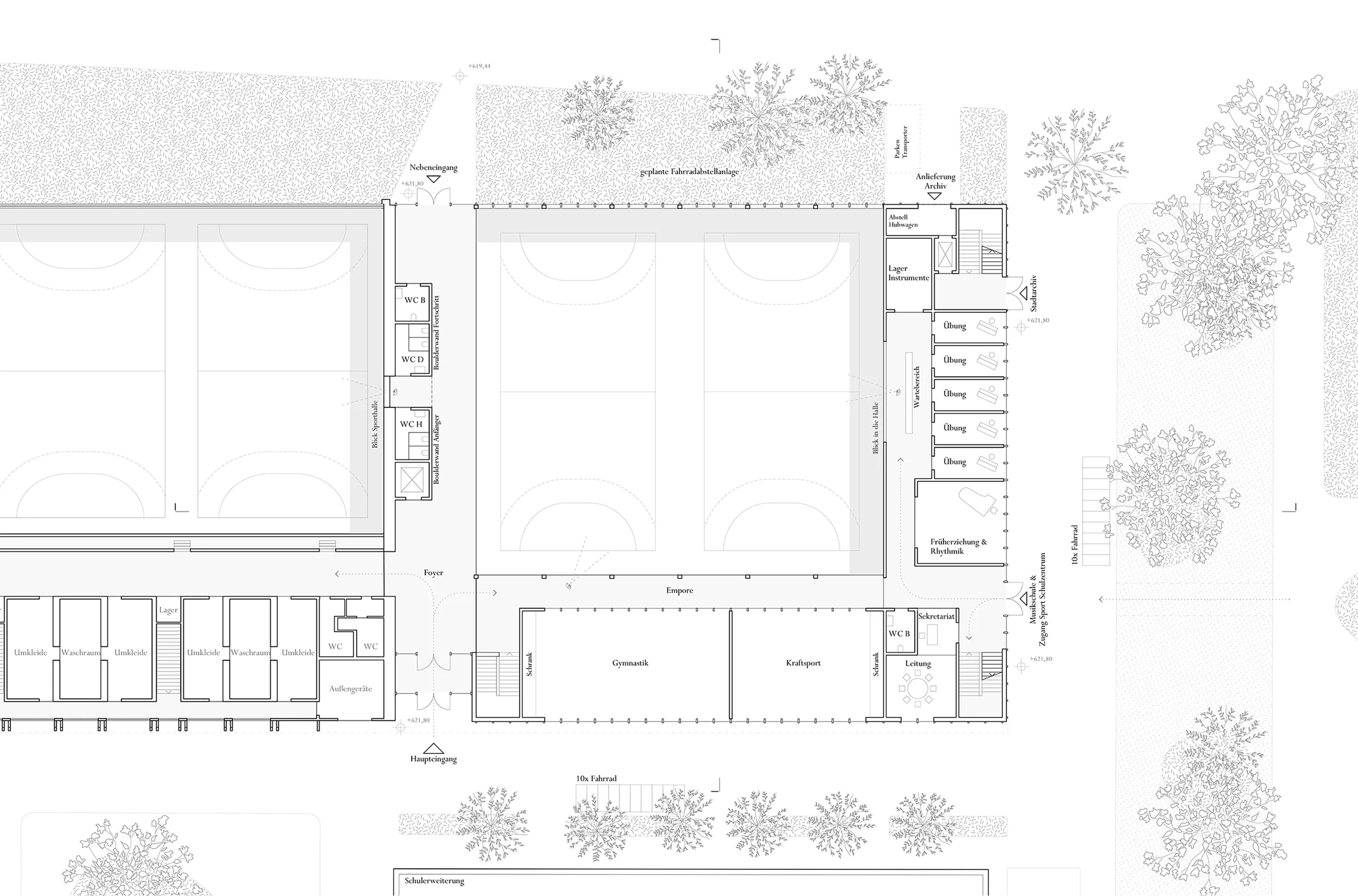
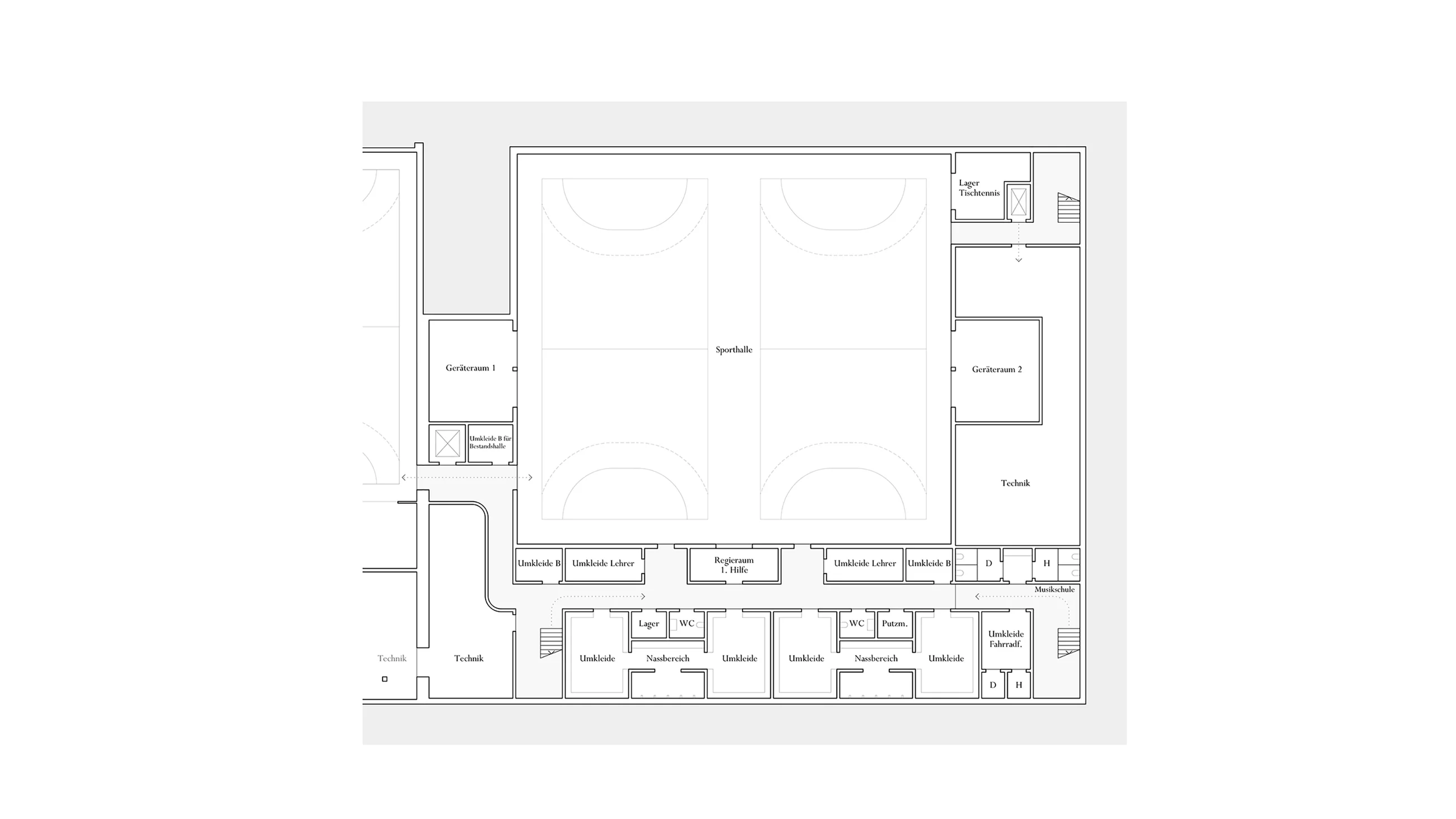
Die neue 2-Feld Sporthalle am Bildungszentrum Döchtbühl erweitert die bestehende Dreifeldhalle und entwickelt deren bauliche Logik weiter. Neben der Sporthalle beherbergt der Neubau eine Jugendmusikschule sowie ein Stadtarchiv. Diese sind in einem zweigeschossigen Riegel zum Campusplatz hin untergebracht, der einen städtebaulich markanten neuen Hochpunkt bildet.
| Gebäudetyp | Sportstätten | 
| Projektkategorie | Wettbewerb | 
| Standort | Bad Waldsee | 
| Bruttogeschossfläche | 2.900 m2 | 
| Kooperationspartner | Herbert Hussmann Architekten | 
| Bauherr/Auftraggeber | Kreisstadt Bad Waldsee | 
 Sporthalle Bad Waldsee
1/9








