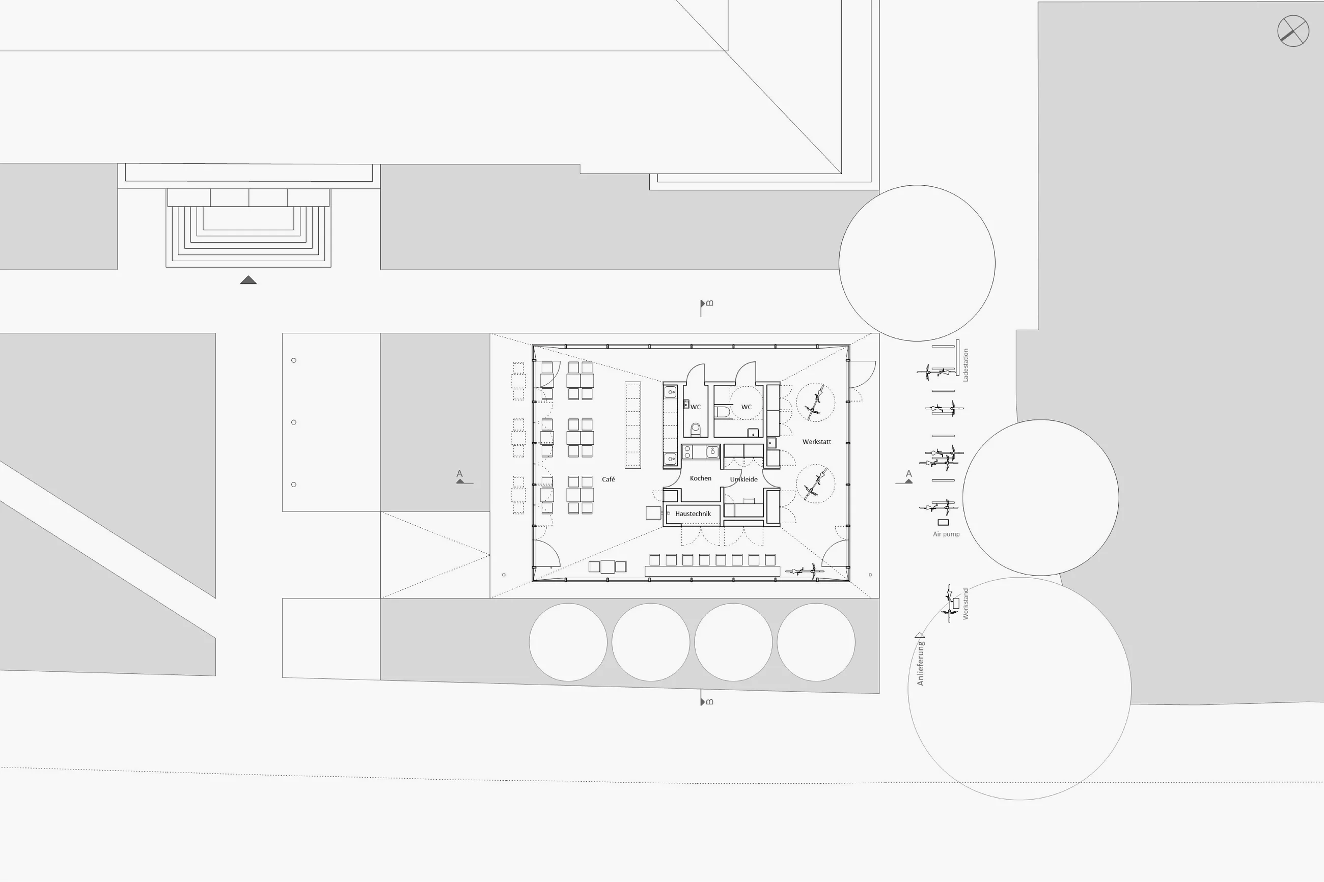
Im Rahmen und im Zentrum des Verbundprojektes FahrradModellQuartier errichtete die Hochschule Bremen auf Ihrem Campus das FahrradRepairCafé in der Alten Neustadt in Bremen. Das disziplinübergreifende Projekt entstand aus der Initiative der School of Architecture an der Hochschule Bremen im Verbund mit dem Umwelt- Bau- und Verkehrsressort und in Zusammenarbeit mit dem ADFC und der Zivilgesellschaft. Neben dem Cafébetrieb und einer Fahrradwerkstatt wird Raum für Diskurs und öffentliche Veranstaltungen zur Energie-, Bau- und Verkehrswende geboten. Das Gebäude ist in seiner Energiebilanz klimaneutral und seine Materialien sind zu 100% rezyklierbar. Geometrie, Struktur und Wahl der Baumaterialien setzen die Ideen des nachhaltigen Bauens vollständig um. Ein kompakter Vollholzkern mit Neben- und Technikräumen teilt das Gebäude in den Café- und den Werkstattbereich. Charakteristische Strukturelemente des Gebäudes sind das trichterförmige Holzdach aus vorgefertigten BSPElementen sowie die transparente Fassade zum Stadtraum hin.
| Gebäudetyp | Pavillon |
| Projektkategorie | Neubau |
| Standort | Bremen |
| Jahr | 2017–2019 |
| Projektleitung | Justus Dietz als Projektarchitekt der School of Architecture Bremen |
| Kooperationspartner | Prof. Ingo Lütkemeyer, Prof. Dr. Rolf-Peter Strauß, Prof. Michaela Hoppe (Konzeption Gebäudetechnologie) |
| Fotografie | Duy Thong Buy |
| Bauherr/Auftraggeber | Hochschule Bremen |
| Förderung | Nationale Klimaschutzinitiative des Bundesministeriums für Umwelt, Naturschutz, Bau und Reaktorsicherheit |
| Landschaftsarchitektur | Dipl.-Ing. Thorsten Kreikenbaum, Kreikenbaum+Heinemann |
| Tragwerksplanung/Statik | Prof. Dr. Martin Speth, Dipl.-Ing. Matthias Hauer Drewes + Speth Beratende Ingenieure im Bauwesen, Hannover |
| Gebäudetechnik | Dipl.-Ing. Florian Reuter, Polyplan Beratende Ingenieure TGA Bügling Freyer PARTGmBB |
| Umsetzung | Michael Pomplun GmbH, Geestland |
1/17
















