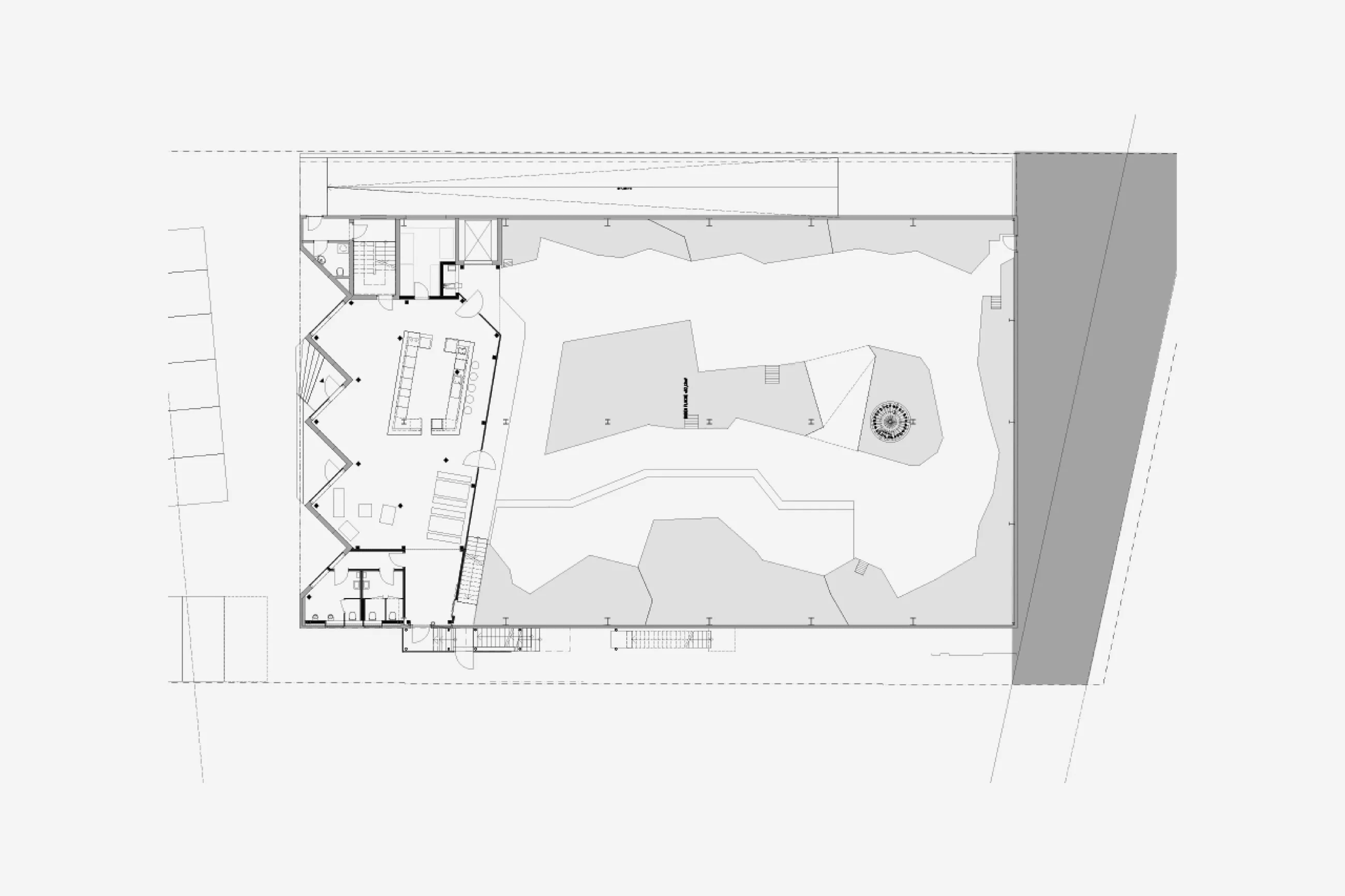
Im Spannungsfeld zwischen bisher dunkel genutzter Lagerfläche und nunmehr der Öffentlichkeit zugänglichen Sportkletterflächen für Erwachsene sowie für Kinder, Yogaraum und Bistrobereich entstehen die neuen Welten des Café Kraft in Stuttgart. Die vier Laderampen sind entwurfsbestimmender Bestandteil der Gestaltung geworden. Diese gliedern den Eingang, Bistro, Shop sowie auch die Umkleidebereiche im Untergeschoss ebenso wie die Trainingsebene. Vielfache Wegverbindungen zwischen den Kletterbereichen und den Funktionsbereichen gestalten auf drei Ebenen eine Kletterwelt zum dauerhaften verweilen. Ausblicke in die umliegende Industriezone sowie den Naturraum im Süden lassen die Kletterer zur Ruhe kommen - nicht nur im Bistro sondern auch in allen Kletterbereichen.
| Gebäudetyp | Kletterhalle |
| Standort | Stuttgart |
| Jahr | 2015 |
| Bruttogeschossfläche | 3000 m² |
| Kooperationspartner | Gerald Ulrich (Turngerätebau), Bobran Ingenieure (Bauphysik) |
| Fotografie | Studio Orel |
| Visualisierungen | hbA |
| Bauherr/Auftraggeber | Block Shape GmbH |
| Tragwerksplanung/Statik | Lang Ingenieure |
1/12











